Elected Officials
Courts
Departments
Initiatives
Open Government
About
Login / Register
Home
/
Property & Tax Records
/
Property Records
/
Property & Tax Search
/
Parcel Profile
/
Sketches
Search for Another Parcel
Parcel Profile
Historical Card
Sketches
Photos
Tax Map
Taxes
Print View
Address: 920 RASPBERRY ST
Parcel: 16030057010200
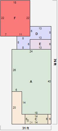
Parcel Sketches
Residential Card 1
A
MAIN
876 square feet
B
OFP OPEN FRAME PORCH
228 square feet
C
OFP OPEN FRAME PORCH
84 square feet
D
MA_PT CONC/MAS PATIO
168 square feet
E
EFP ENCL FRAME PORCH
78 square feet
F
FR GR FRAME GARAGE
396 square feet