Elected Officials
Courts
Departments
Initiatives
Open Government
About
Login / Register
Home
/
Property & Tax Records
/
Property Records
/
Property & Tax Search
/
Parcel Profile
/
Sketches
Search for Another Parcel
Parcel Profile
Historical Card
Sketches
Photos
Tax Map
Taxes
Print View
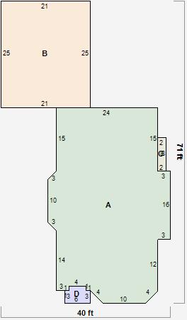
Address: 908 RASPBERRY ST
Parcel: 16030057010400
Parcel Sketches
Residential Card 1
A
MAIN
1139 square feet
B
1S FR ONE STORY FRAME
525 square feet
C
1S FR ONE STORY FRAME
16 square feet
D
MA STOOP/TERR MAS STOOP
22 square feet