Elected Officials
Courts
Departments
Initiatives
Open Government
About
Login / Register
Home
/
Property & Tax Records
/
Property Records
/
Property & Tax Search
/
Parcel Profile
/
Sketches
Search for Another Parcel
Parcel Profile
Historical Card
Sketches
Photos
Tax Map
Taxes
Print View
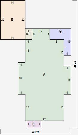
Address: 906 RASPBERRY ST
Parcel: 16030057010500
Parcel Sketches
Residential Card 1
A
MAIN
1208 square feet
B
FR GR FRAME GARAGE
308 square feet
C
EMP ENCL MASONRY PORCH
24 square feet
D
EFP ENCL FRAME PORCH
108 square feet
E
EMP ENCL MASONRY PORCH
32 square feet