Elected Officials
Courts
Departments
Initiatives
Open Government
About
Login / Register
Home
/
Property & Tax Records
/
Property Records
/
Property & Tax Search
/
Parcel Profile
/
Sketches
Search for Another Parcel
Parcel Profile
Historical Card
Sketches
Photos
Tax Map
Taxes
Print View
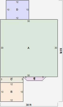
Address: 919 WASHINGTON
Parcel: 16030059012300
Parcel Sketches
Residential Card 1
A
MAIN
900 square feet
B
OMP OPEN MASONRY PORCH
120 square feet
C
EMP ENCL MASONRY PORCH
36 square feet
D
FR UT FRAME UTILITY BUILDING
120 square feet
E
MABAY MASONRY BAY
20 square feet