Elected Officials
Courts
Departments
Initiatives
Open Government
About
Login / Register
Home
/
Property & Tax Records
/
Property Records
/
Property & Tax Search
/
Parcel Profile
/
Sketches
Search for Another Parcel
Parcel Profile
Historical Card
Sketches
Photos
Tax Map
Taxes
Print View
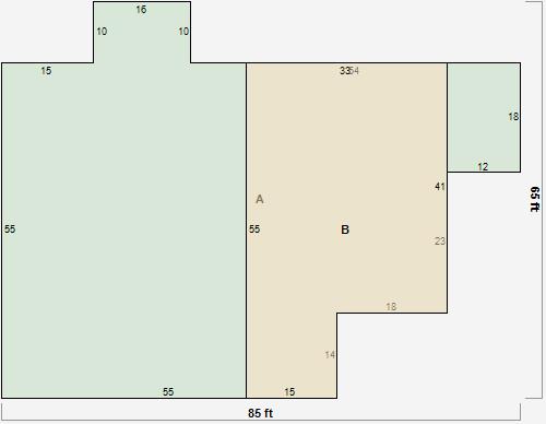
Address: 1510 1514 W 12 ST
Parcel: 16031004011100
Parcel Sketches
Commercial Card 1
A
MAIN
4139 square feet
B
MAIN
1563 square feet