Elected Officials
Courts
Departments
Initiatives
Open Government
About
Login / Register
Home
/
Property & Tax Records
/
Property Records
/
Property & Tax Search
/
Parcel Profile
/
Sketches
Search for Another Parcel
Parcel Profile
Historical Card
Sketches
Photos
Tax Map
Taxes
Print View
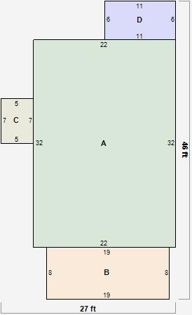
Address: 1672 W 9 ST
Parcel: 16031005030000
Parcel Sketches
Residential Card 1
A
MAIN
704 square feet
B
1SMAS MASONRY
152 square feet
C
CANPY CANOPY
35 square feet
D
EFP ENCL FRAME PORCH
66 square feet