Address: 1679 1681 W 8 ST   Parcel: 16031005030300

Parcel Sketches


Residential Card 1

Residential Card 1
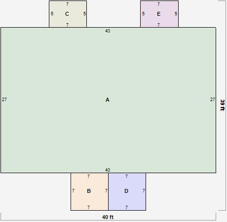
AMAIN1080 square feet
BUNFIN BSMT BASEMENT UNFINISHED OFP OPEN FRAME PORCH 49 square feet
C FR UT FRAME UTILITY BUILDING 35 square feet
DUNFIN BSMT BASEMENT UNFINISHED OFP OPEN FRAME PORCH 49 square feet
E FR UT FRAME UTILITY BUILDING 35 square feet