Elected Officials
Courts
Departments
Initiatives
Open Government
About
Login / Register
Home
/
Property & Tax Records
/
Property Records
/
Property & Tax Search
/
Parcel Profile
/
Sketches
Search for Another Parcel
Parcel Profile
Historical Card
Sketches
Photos
Tax Map
Taxes
Print View
Address: 1673 W 13 ST
Parcel: 16031007010100
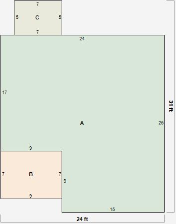
Parcel Sketches
Residential Card 1
A
MAIN
543 square feet
B
EFP ENCL FRAME PORCH
63 square feet
C
EFP ENCL FRAME PORCH
35 square feet