Elected Officials
Courts
Departments
Initiatives
Open Government
About
Login / Register
Home
/
Property & Tax Records
/
Property Records
/
Property & Tax Search
/
Parcel Profile
/
Sketches
Search for Another Parcel
Parcel Profile
Historical Card
Sketches
Photos
Tax Map
Taxes
Print View
Address: 1815 GROVE DR
Parcel: 16031009010300
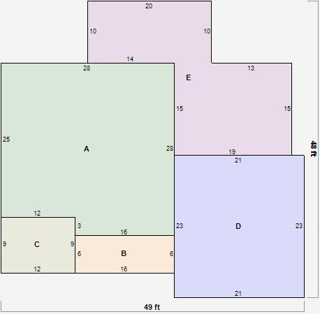
Parcel Sketches
Residential Card 1
A
MAIN
748 square feet
B
UNFIN BSMT BASEMENT UNFINISHED OFP OPEN FRAME PORCH
96 square feet
C
UNFIN BSMT BASEMENT UNFINISHED OFP OPEN FRAME PORCH
108 square feet
D
FR GR FRAME GARAGE
483 square feet
E
1S FR ONE STORY FRAME
485 square feet