Elected Officials
Courts
Departments
Initiatives
Open Government
About
Login / Register
Home
/
Property & Tax Records
/
Property Records
/
Property & Tax Search
/
Parcel Profile
/
Sketches
Search for Another Parcel
Parcel Profile
Historical Card
Sketches
Photos
Tax Map
Taxes
Print View
Address: 1830 W 9 ST
Parcel: 16031009042000
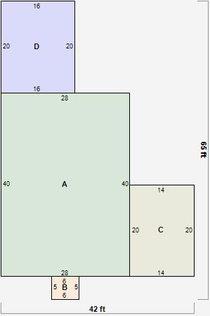
Parcel Sketches
Residential Card 1
A
MAIN
1120 square feet
B
OFP OPEN FRAME PORCH
30 square feet
C
CARPT CARPORT
280 square feet
D
WDDCK WOOD DECKS
320 square feet