Elected Officials
Courts
Departments
Initiatives
Open Government
About
Login / Register
Home
/
Property & Tax Records
/
Property Records
/
Property & Tax Search
/
Parcel Profile
/
Sketches
Search for Another Parcel
Parcel Profile
Historical Card
Sketches
Photos
Tax Map
Taxes
Print View
Address: 1944 W 21 ST
Parcel: 16031022030000
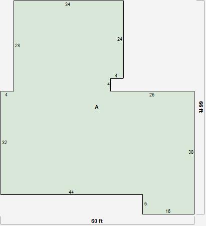
Parcel Sketches
Commercial Card 1
A
MAIN
756 square feet
B
MAIN
1326 square feet
C
MAIN
1137 square feet
Commercial Card 2
A
MAIN
2952 square feet