Elected Officials
Courts
Departments
Initiatives
Open Government
About
Login / Register
Home
/
Property & Tax Records
/
Property Records
/
Property & Tax Search
/
Parcel Profile
/
Sketches
Search for Another Parcel
Parcel Profile
Historical Card
Sketches
Photos
Tax Map
Taxes
Print View
Address: 214 W 3 ST
Parcel: 17040009023700
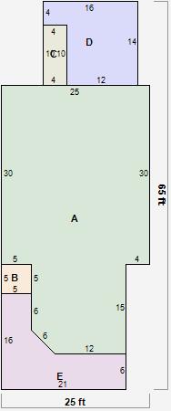
Parcel Sketches
Residential Card 1
A
MAIN
982 square feet
B
EFP ENCL FRAME PORCH
25 square feet
C
OFP OPEN FRAME PORCH
40 square feet
D
EFP ENCL FRAME PORCH
184 square feet
E
OFP OPEN FRAME PORCH
184 square feet