Elected Officials
Courts
Departments
Initiatives
Open Government
About
Login / Register
Home
/
Property & Tax Records
/
Property Records
/
Property & Tax Search
/
Parcel Profile
/
Sketches
Search for Another Parcel
Parcel Profile
Historical Card
Sketches
Photos
Tax Map
Taxes
Print View
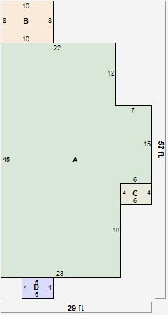
Address: 361 W 7 ST
Parcel: 17040010012100
Parcel Sketches
Residential Card 1
A
MAIN
1113 square feet
B
WDDCK WOOD DECKS
80 square feet
C
MA STOOP/TERR MAS STOOP
24 square feet
D
MA STOOP/TERR MAS STOOP
24 square feet