Elected Officials
Courts
Departments
Initiatives
Open Government
About
Login / Register
Home
/
Property & Tax Records
/
Property Records
/
Property & Tax Search
/
Parcel Profile
/
Sketches
Search for Another Parcel
Parcel Profile
Historical Card
Sketches
Photos
Tax Map
Taxes
Print View
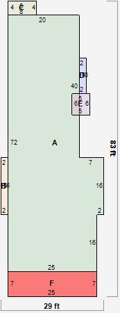
Address: 330 32 W 8 ST
Parcel: 17040010013000
Parcel Sketches
Residential Card 1
A
MAIN
1632 square feet
B
FROVR FRAME OVERHANG AT UN ATTIC-UNFINISHED
32 square feet
C
1S FR ONE STORY FRAME 1S FR ONE STORY FRAME
32 square feet
D
FRBAY FRAME BAY
20 square feet
E
OFP OPEN FRAME PORCH
30 square feet
F
OFP OPEN FRAME PORCH
175 square feet