Elected Officials
Courts
Departments
Initiatives
Open Government
About
Login / Register
Home
/
Property & Tax Records
/
Property Records
/
Property & Tax Search
/
Parcel Profile
/
Sketches
Search for Another Parcel
Parcel Profile
Historical Card
Sketches
Photos
Tax Map
Taxes
Print View
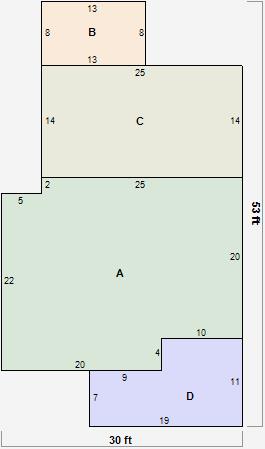
Address: 334 W 5 ST
Parcel: 17040011023300
Parcel Sketches
Residential Card 1
A
MAIN
670 square feet
B
EFP ENCL FRAME PORCH
104 square feet
C
UNFIN BSMT BASEMENT UNFINISHED 1S FR ONE STORY FRAME
350 square feet
D
EFP ENCL FRAME PORCH
173 square feet