Elected Officials
Courts
Departments
Initiatives
Open Government
About
Login / Register
Home
/
Property & Tax Records
/
Property Records
/
Property & Tax Search
/
Parcel Profile
/
Sketches
Search for Another Parcel
Parcel Profile
Historical Card
Sketches
Photos
Tax Map
Taxes
Print View
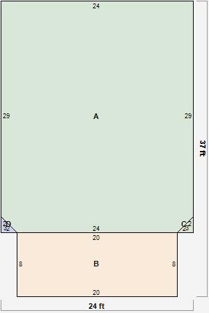
Address: 317 W 2 ST
Parcel: 17040012020800
Parcel Sketches
Residential Card 1
A
MAIN
696 square feet
B
FROVR FRAME OVERHANG
160 square feet
C
FROVR FRAME OVERHANG
2 square feet
D
OFP OPEN FRAME PORCH
2 square feet