Elected Officials
Courts
Departments
Initiatives
Open Government
About
Login / Register
Home
/
Property & Tax Records
/
Property Records
/
Property & Tax Search
/
Parcel Profile
/
Sketches
Search for Another Parcel
Parcel Profile
Historical Card
Sketches
Photos
Tax Map
Taxes
Print View
Address: 362 W 3RD ST
Parcel: 17040012022600
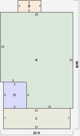
Parcel Sketches
Residential Card 1
A
MAIN
744 square feet
B
MA STOOP/TERR MAS STOOP
32 square feet
C
OFP OPEN FRAME PORCH
161 square feet
D
OFP OPEN FRAME PORCH 1S FR ONE STORY FRAME
72 square feet