Elected Officials
Courts
Departments
Initiatives
Open Government
About
Login / Register
Home
/
Property & Tax Records
/
Property Records
/
Property & Tax Search
/
Parcel Profile
/
Sketches
Search for Another Parcel
Parcel Profile
Historical Card
Sketches
Photos
Tax Map
Taxes
Print View
Address: 411 W 4 ST
Parcel: 17040014020900
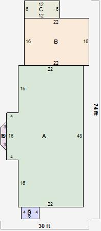
Parcel Sketches
Residential Card 1
A
MAIN
1120 square feet
B
1S FR ONE STORY FRAME 1S FR ONE STORY FRAME
352 square feet
C
1S FR ONE STORY FRAME
72 square feet
D
FRBAY FRAME BAY
24 square feet
E
FRBAY FRAME BAY
16 square feet