Elected Officials
Courts
Departments
Initiatives
Open Government
About
Login / Register
Home
/
Property & Tax Records
/
Property Records
/
Property & Tax Search
/
Parcel Profile
/
Sketches
Search for Another Parcel
Parcel Profile
Historical Card
Sketches
Photos
Tax Map
Taxes
Print View
Address: 527 W 7 ST
Parcel: 17040016010800
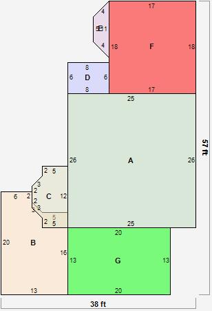
Parcel Sketches
Residential Card 1
A
MAIN
650 square feet
B
OMP OPEN MASONRY PORCH
234 square feet
C
MABAY MASONRY BAY
72 square feet
D
OMP OPEN MASONRY PORCH
48 square feet
E
FRBAY FRAME BAY
24 square feet
F
UNFIN BSMT BASEMENT UNFINISHED 1S FR ONE STORY FRAME 1S FR ONE STORY FRAME
306 square feet
G
UNFIN BSMT BASEMENT UNFINISHED 1SMAS MASONRY 1SMAS MASONRY
260 square feet