Elected Officials
Courts
Departments
Initiatives
Open Government
About
Login / Register
Home
/
Property & Tax Records
/
Property Records
/
Property & Tax Search
/
Parcel Profile
/
Sketches
Search for Another Parcel
Parcel Profile
Historical Card
Sketches
Photos
Tax Map
Taxes
Print View
Address: 627 629 W 7TH ST
Parcel: 17040019011100
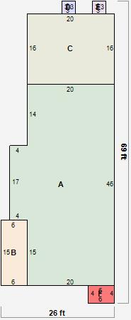
Parcel Sketches
Residential Card 1
A
MAIN
988 square feet
B
OFP OPEN FRAME PORCH OFP OPEN FRAME PORCH
90 square feet
C
UNFIN BSMT BASEMENT UNFINISHED 1S FR ONE STORY FRAME 1S FR ONE STORY FRAME
320 square feet
D
MA STOOP/TERR MAS STOOP
9 square feet
E
MA STOOP/TERR MAS STOOP
9 square feet
F
OFP OPEN FRAME PORCH
24 square feet