Elected Officials
Courts
Departments
Initiatives
Open Government
About
Login / Register
Home
/
Property & Tax Records
/
Property Records
/
Property & Tax Search
/
Parcel Profile
/
Sketches
Search for Another Parcel
Parcel Profile
Historical Card
Sketches
Photos
Tax Map
Taxes
Print View
Address: 661 63 W 7 ST
Parcel: 17040019012000
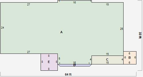
Parcel Sketches
Residential Card 1
A
MAIN
1503 square feet
B
OMP OPEN MASONRY PORCH
36 square feet
C
1SMAS MASONRY
60 square feet
D
MABAY MASONRY BAY
15 square feet
E
OMP OPEN MASONRY PORCH
64 square feet