Elected Officials
Courts
Departments
Initiatives
Open Government
About
Login / Register
Home
/
Property & Tax Records
/
Property Records
/
Property & Tax Search
/
Parcel Profile
/
Sketches
Search for Another Parcel
Parcel Profile
Historical Card
Sketches
Photos
Tax Map
Taxes
Print View
Address: 654 56 W 8 ST
Parcel: 17040019012800
Parcel Sketches
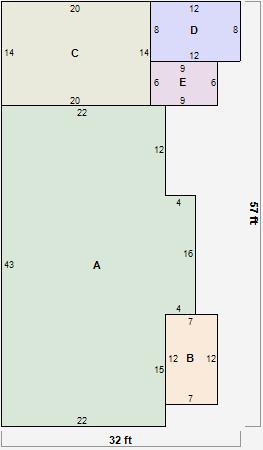
Residential Card 1
A
MAIN
1428 square feet
B
OFP OPEN FRAME PORCH
204 square feet
C
OFP OPEN FRAME PORCH OFP OPEN FRAME PORCH
90 square feet
Residential Card 2
A
MAIN
1010 square feet
B
OFP OPEN FRAME PORCH
84 square feet
C
1S FR ONE STORY FRAME
280 square feet
D
EFP ENCL FRAME PORCH
96 square feet
E
OFP OPEN FRAME PORCH
54 square feet