Elected Officials
Courts
Departments
Initiatives
Open Government
About
Login / Register
Home
/
Property & Tax Records
/
Property Records
/
Property & Tax Search
/
Parcel Profile
/
Sketches
Search for Another Parcel
Parcel Profile
Historical Card
Sketches
Photos
Tax Map
Taxes
Print View
Address: 618 W 5 ST
Parcel: 17040020024400
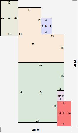
Parcel Sketches
Residential Card 1
A
MAIN
812 square feet
B
1S FR ONE STORY FRAME
611 square feet
C
MASUT MASONRY UTIL
200 square feet
D
EFP ENCL FRAME PORCH
54 square feet
E
EFP ENCL FRAME PORCH
24 square feet
F
WDDCK WOOD DECKS
112 square feet