Address: 626 28 W 4 ST   Parcel: 17040021014000

Parcel Sketches


Residential Card 1

Residential Card 1
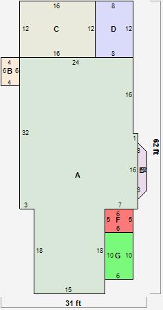
AMAIN1054 square feet
B MA STOOP/TERR MAS STOOP 24 square feet
CUNFIN BSMT BASEMENT UNFINISHED 1S FR ONE STORY FRAME 192 square feet
D OFP OPEN FRAME PORCH 96 square feet
EUNFIN BSMT BASEMENT UNFINISHED FRBAY FRAME BAY FRBAY FRAME BAY 20 square feet
FUNFIN BSMT BASEMENT UNFINISHED 1S FR ONE STORY FRAME 30 square feet
G OFP OPEN FRAME PORCH 60 square feet