Elected Officials
Courts
Departments
Initiatives
Open Government
About
Login / Register
Home
/
Property & Tax Records
/
Property Records
/
Property & Tax Search
/
Parcel Profile
/
Sketches
Search for Another Parcel
Parcel Profile
Historical Card
Sketches
Photos
Tax Map
Taxes
Print View
Address: 724 26 POPLAR ST
Parcel: 17040022010000
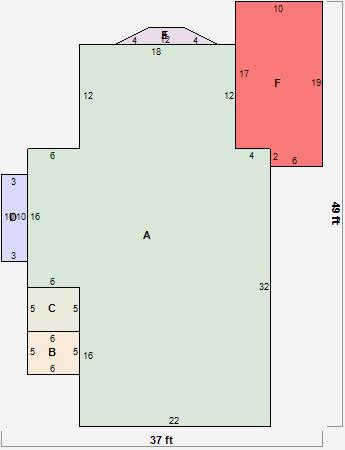
Parcel Sketches
Residential Card 1
A
MAIN
1016 square feet
B
MA STOOP/TERR MAS STOOP
30 square feet
C
EFP ENCL FRAME PORCH
30 square feet
D
UNFIN BSMT BASEMENT UNFINISHED 1S FR ONE STORY FRAME
30 square feet
E
UNFIN BSMT BASEMENT UNFINISHED FRBAY FRAME BAY
16 square feet
F
1S FR ONE STORY FRAME
182 square feet