Elected Officials
Courts
Departments
Initiatives
Open Government
About
Login / Register
Home
/
Property & Tax Records
/
Property Records
/
Property & Tax Search
/
Parcel Profile
/
Sketches
Search for Another Parcel
Parcel Profile
Historical Card
Sketches
Photos
Tax Map
Taxes
Print View
Address: 732 W 7 ST
Parcel: 17040022021100
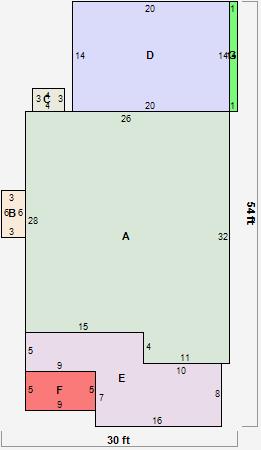
Parcel Sketches
Residential Card 1
A
MAIN
772 square feet
B
CANPY CANOPY
18 square feet
C
OFP OPEN FRAME PORCH
12 square feet
D
FR GR FRAME GARAGE WDDCK WOOD DECKS
280 square feet
E
FR GR FRAME GARAGE
197 square feet
F
1S FR ONE STORY FRAME
45 square feet
G
MA STOOP/TERR MAS STOOP
14 square feet