Elected Officials
Courts
Departments
Initiatives
Open Government
About
Login / Register
Home
/
Property & Tax Records
/
Property Records
/
Property & Tax Search
/
Parcel Profile
/
Sketches
Search for Another Parcel
Parcel Profile
Historical Card
Sketches
Photos
Tax Map
Taxes
Print View
Address: 706 W 7 ST
Parcel: 17040022021800
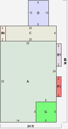
Parcel Sketches
Residential Card 1
A
MAIN
640 square feet
B
FROVR FRAME OVERHANG
12 square feet
C
1S FR ONE STORY FRAME 1S FR ONE STORY FRAME
120 square feet
D
WDDCK WOOD DECKS
80 square feet
E
FRBAY FRAME BAY
18 square feet
F
FRBAY FRAME BAY
16 square feet
G
EFP ENCL FRAME PORCH
64 square feet