Elected Officials
Courts
Departments
Initiatives
Open Government
About
Login / Register
Home
/
Property & Tax Records
/
Property Records
/
Property & Tax Search
/
Parcel Profile
/
Sketches
Search for Another Parcel
Parcel Profile
Historical Card
Sketches
Photos
Tax Map
Taxes
Print View
Address: 813 W 4 ST
Parcel: 17040026020700
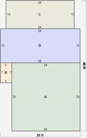
Parcel Sketches
Residential Card 1
A
MAIN
576 square feet
B
MA STOOP/TERR MAS STOOP
28 square feet
C
WDDCK WOOD DECKS
240 square feet
D
1S FR ONE STORY FRAME AT UN ATTIC-UNFINISHED
336 square feet