Elected Officials
Courts
Departments
Initiatives
Open Government
About
Login / Register
Home
/
Property & Tax Records
/
Property Records
/
Property & Tax Search
/
Parcel Profile
/
Sketches
Search for Another Parcel
Parcel Profile
Historical Card
Sketches
Photos
Tax Map
Taxes
Print View
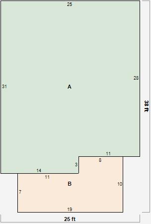
Address: 905 W 7 ST
Parcel: 17040028010900
Parcel Sketches
Residential Card 1
A
MAIN
742 square feet
B
OFP OPEN FRAME PORCH
157 square feet