Elected Officials
Courts
Departments
Initiatives
Open Government
About
Login / Register
Home
/
Property & Tax Records
/
Property Records
/
Property & Tax Search
/
Parcel Profile
/
Sketches
Search for Another Parcel
Parcel Profile
Historical Card
Sketches
Photos
Tax Map
Taxes
Print View
Address: 952 W 8 ST
Parcel: 17040028013400
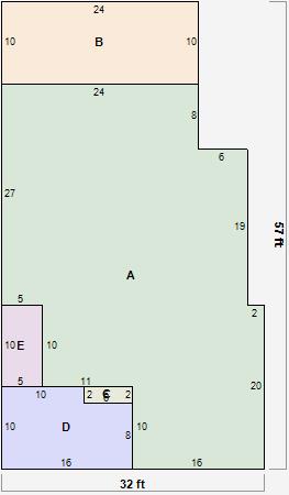
Parcel Sketches
Residential Card 1
A
MAIN
1192 square feet
B
WDDCK WOOD DECKS
240 square feet
C
EFP ENCL FRAME PORCH
12 square feet
D
OMP OPEN MASONRY PORCH FROVR FRAME OVERHANG
148 square feet
E
OFP OPEN FRAME PORCH AT FN ATTIC-FINISHED
50 square feet