Elected Officials
Courts
Departments
Initiatives
Open Government
About
Login / Register
Home
/
Property & Tax Records
/
Property Records
/
Property & Tax Search
/
Parcel Profile
/
Sketches
Search for Another Parcel
Parcel Profile
Historical Card
Sketches
Photos
Tax Map
Taxes
Print View
Address: 940 W 5 ST
Parcel: 17040029022700
Parcel Sketches
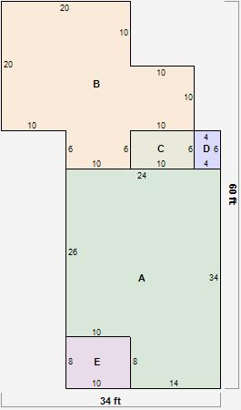
Residential Card 1
A
MAIN
736 square feet
B
WDDCK WOOD DECKS
560 square feet
C
EFP ENCL FRAME PORCH 1S FR ONE STORY FRAME
60 square feet
D
FROVR FRAME OVERHANG
24 square feet
E
EFP ENCL FRAME PORCH
80 square feet