Elected Officials
Courts
Departments
Initiatives
Open Government
About
Login / Register
Home
/
Property & Tax Records
/
Property Records
/
Property & Tax Search
/
Parcel Profile
/
Sketches
Search for Another Parcel
Parcel Profile
Historical Card
Sketches
Photos
Tax Map
Taxes
Print View
Address: 916 W 4 ST
Parcel: 17040030013500
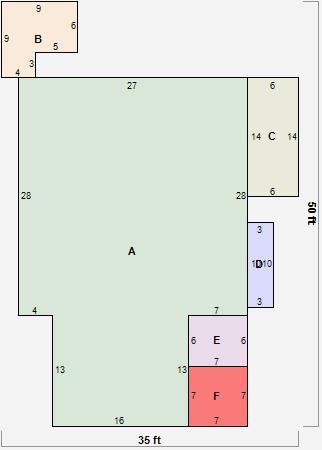
Parcel Sketches
Residential Card 1
A
MAIN
964 square feet
B
OFP OPEN FRAME PORCH
66 square feet
C
OFP OPEN FRAME PORCH
84 square feet
D
FRBAY FRAME BAY
30 square feet
E
EFP ENCL FRAME PORCH
42 square feet
F
OFP OPEN FRAME PORCH
49 square feet