Elected Officials
Courts
Departments
Initiatives
Open Government
About
Login / Register
Home
/
Property & Tax Records
/
Property Records
/
Property & Tax Search
/
Parcel Profile
/
Sketches
Search for Another Parcel
Parcel Profile
Historical Card
Sketches
Photos
Tax Map
Taxes
Print View
Address: 708 CASCADE ST
Parcel: 17040031010500
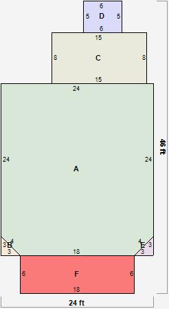
Parcel Sketches
Residential Card 1
A
MAIN
639 square feet
B
FROVR FRAME OVERHANG
5 square feet
C
1S FR ONE STORY FRAME
120 square feet
D
FR UT FRAME UTILITY BUILDING
30 square feet
E
FROVR FRAME OVERHANG
5 square feet
F
EFP ENCL FRAME PORCH
108 square feet