Elected Officials
Courts
Departments
Initiatives
Open Government
About
Login / Register
Home
/
Property & Tax Records
/
Property Records
/
Property & Tax Search
/
Parcel Profile
/
Sketches
Search for Another Parcel
Parcel Profile
Historical Card
Sketches
Photos
Tax Map
Taxes
Print View
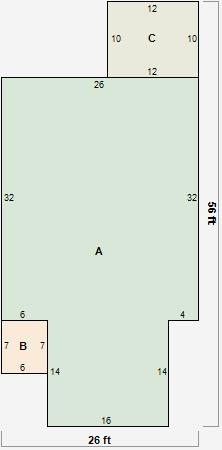
Address: 1023 W 4TH ST
Parcel: 17040032021100
Parcel Sketches
Residential Card 1
A
MAIN
1056 square feet
B
OFP OPEN FRAME PORCH
42 square feet
C
WDDCK WOOD DECKS
120 square feet