Elected Officials
Courts
Departments
Initiatives
Open Government
About
Login / Register
Home
/
Property & Tax Records
/
Property Records
/
Property & Tax Search
/
Parcel Profile
/
Sketches
Search for Another Parcel
Parcel Profile
Historical Card
Sketches
Photos
Tax Map
Taxes
Print View
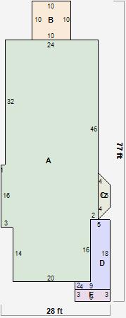
Address: 1052 W 4TH ST
Parcel: 17040033012800
Parcel Sketches
Residential Card 1
A
MAIN
1444 square feet
B
1S FR ONE STORY FRAME
100 square feet
C
UNFIN BSMT BASEMENT UNFINISHED FRBAY FRAME BAY FRBAY FRAME BAY
27 square feet
D
EFP ENCL FRAME PORCH
98 square feet
E
MA STOOP/TERR MAS STOOP
27 square feet