Elected Officials
Courts
Departments
Initiatives
Open Government
About
Login / Register
Home
/
Property & Tax Records
/
Property Records
/
Property & Tax Search
/
Parcel Profile
/
Sketches
Search for Another Parcel
Parcel Profile
Historical Card
Sketches
Photos
Tax Map
Taxes
Print View
Address: 403 CHEROKEE DR
Parcel: 17041007040600
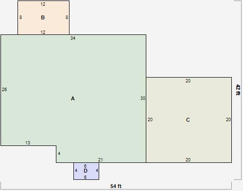
Parcel Sketches
Residential Card 1
A
MAIN
968 square feet
B
EFP ENCL FRAME PORCH
96 square feet
C
MG/BG MASONRY/BRICK GARAGE
400 square feet
D
MA STOOP/TERR MAS STOOP
24 square feet