Elected Officials
Courts
Departments
Initiatives
Open Government
About
Login / Register
Home
/
Property & Tax Records
/
Property Records
/
Property & Tax Search
/
Parcel Profile
/
Sketches
Search for Another Parcel
Parcel Profile
Historical Card
Sketches
Photos
Tax Map
Taxes
Print View
Address: 411 CHEROKEE DR
Parcel: 17041007040700
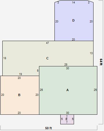
Parcel Sketches
Residential Card 1
A
MAIN
750 square feet
B
MG/BG MASONRY/BRICK GARAGE 1SMAS MASONRY
400 square feet
C
1S FR ONE STORY FRAME
706 square feet
D
MA_PT CONC/MAS PATIO
417 square feet
E
MA STOOP/TERR MAS STOOP
35 square feet