Elected Officials
Courts
Departments
Initiatives
Open Government
About
Login / Register
Home
/
Property & Tax Records
/
Property Records
/
Property & Tax Search
/
Parcel Profile
/
Sketches
Search for Another Parcel
Parcel Profile
Historical Card
Sketches
Photos
Tax Map
Taxes
Print View
Address: 228 CHEROKEE DR
Parcel: 17041012010400
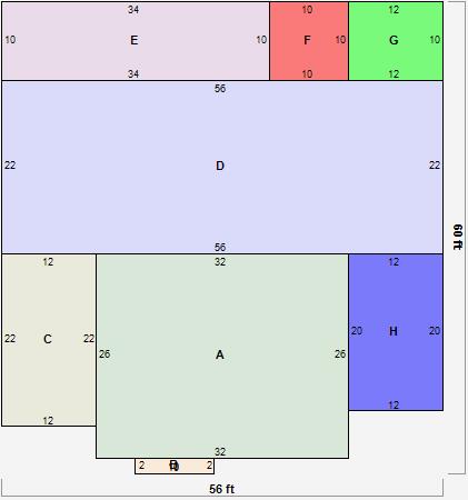
Parcel Sketches
Residential Card 1
A
MAIN
832 square feet
B
FRBAY FRAME BAY
20 square feet
C
FR GR FRAME GARAGE
264 square feet
D
1S FR ONE STORY FRAME
1232 square feet
E
WDDCK WOOD DECKS
340 square feet
F
OFP OPEN FRAME PORCH
100 square feet
G
WDDCK WOOD DECKS
120 square feet
H
FR GR FRAME GARAGE
240 square feet