Elected Officials
Courts
Departments
Initiatives
Open Government
About
Login / Register
Home
/
Property & Tax Records
/
Property Records
/
Property & Tax Search
/
Parcel Profile
/
Sketches
Search for Another Parcel
Parcel Profile
Historical Card
Sketches
Photos
Tax Map
Taxes
Print View
Address: 433 LINCOLN AVE
Parcel: 17041015022200
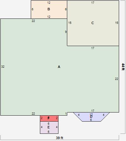
Parcel Sketches
Residential Card 1
A
MAIN
1078 square feet
B
1S FR ONE STORY FRAME
72 square feet
C
MA_PT CONC/MAS PATIO
255 square feet
D
FRBAY FRAME BAY
27 square feet
E
EFP ENCL FRAME PORCH
24 square feet
F
MA STOOP/TERR MAS STOOP
12 square feet