Elected Officials
Courts
Departments
Initiatives
Open Government
About
Login / Register
Home
/
Property & Tax Records
/
Property Records
/
Property & Tax Search
/
Parcel Profile
/
Sketches
Search for Another Parcel
Parcel Profile
Historical Card
Sketches
Photos
Tax Map
Taxes
Print View
Address: 1718 20 W 8 ST
Parcel: 17041018012100
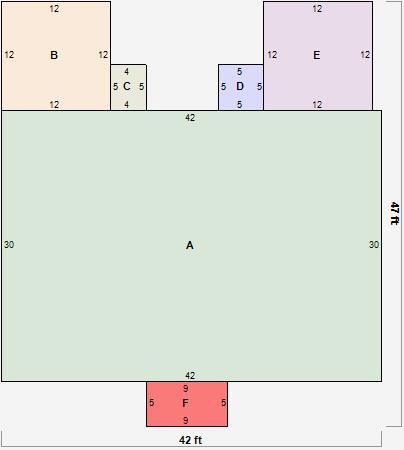
Parcel Sketches
Residential Card 1
A
MAIN
1260 square feet
B
MA_PT CONC/MAS PATIO
144 square feet
C
MA STOOP/TERR MAS STOOP
20 square feet
D
MA STOOP/TERR MAS STOOP
25 square feet
E
MA_PT CONC/MAS PATIO
144 square feet
F
OMP OPEN MASONRY PORCH
45 square feet