Elected Officials
Courts
Departments
Initiatives
Open Government
About
Login / Register
Home
/
Property & Tax Records
/
Property Records
/
Property & Tax Search
/
Parcel Profile
/
Sketches
Search for Another Parcel
Parcel Profile
Historical Card
Sketches
Photos
Tax Map
Taxes
Print View
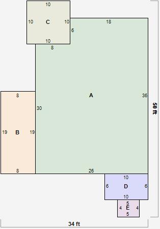
Address: 614 VERMONT AVE
Parcel: 17041018030500
Parcel Sketches
Residential Card 1
A
MAIN
888 square feet
B
UNFIN BSMT BASEMENT UNFINISHED 1SMAS MASONRY
152 square feet
C
EFP ENCL FRAME PORCH
100 square feet
D
1SMAS MASONRY
60 square feet
E
MA STOOP/TERR MAS STOOP
20 square feet