Elected Officials
Courts
Departments
Initiatives
Open Government
About
Login / Register
Home
/
Property & Tax Records
/
Property Records
/
Property & Tax Search
/
Parcel Profile
/
Sketches
Search for Another Parcel
Parcel Profile
Historical Card
Sketches
Photos
Tax Map
Taxes
Print View
Address: 534 KAHKWA BLVD
Parcel: 17041019030200
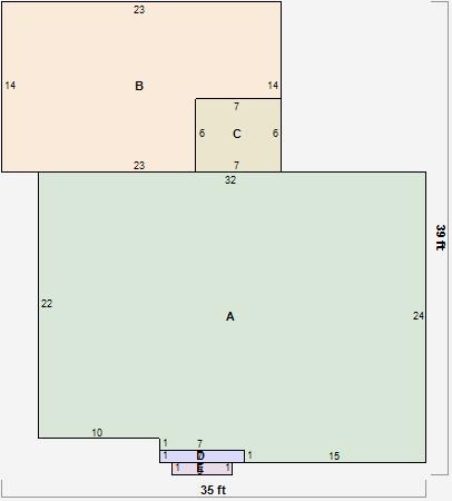
Parcel Sketches
Residential Card 1
A
MAIN
741 square feet
B
WDDCK WOOD DECKS
322 square feet
C
EFP ENCL FRAME PORCH
42 square feet
D
FROVR FRAME OVERHANG
7 square feet
E
MA STOOP/TERR MAS STOOP FROVR FRAME OVERHANG
5 square feet