Elected Officials
Courts
Departments
Initiatives
Open Government
About
Login / Register
Home
/
Property & Tax Records
/
Property Records
/
Property & Tax Search
/
Parcel Profile
/
Sketches
Search for Another Parcel
Parcel Profile
Historical Card
Sketches
Photos
Tax Map
Taxes
Print View
Address: 408 LINCOLN AVE
Parcel: 17041020010900
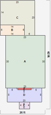
Parcel Sketches
Residential Card 1
A
MAIN
690 square feet
B
1S FR ONE STORY FRAME
84 square feet
C
WDDCK WOOD DECKS
316 square feet
D
EFP ENCL FRAME PORCH
152 square feet
E
MA STOOP/TERR MAS STOOP
24 square feet
F
1S FR ONE STORY FRAME
8 square feet