Elected Officials
Courts
Departments
Initiatives
Open Government
About
Login / Register
Home
/
Property & Tax Records
/
Property Records
/
Property & Tax Search
/
Parcel Profile
/
Sketches
Search for Another Parcel
Parcel Profile
Historical Card
Sketches
Photos
Tax Map
Taxes
Print View
Address: 626 VIRGINIA AVE
Parcel: 17041023030300
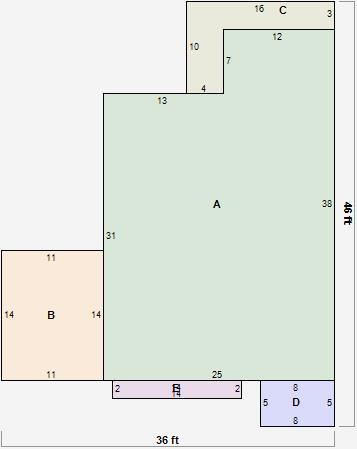
Parcel Sketches
Residential Card 1
A
MAIN
859 square feet
B
1S FR ONE STORY FRAME AT FN ATTIC-FINISHED
154 square feet
C
UNFIN BSMT BASEMENT UNFINISHED 1S FR ONE STORY FRAME
76 square feet
D
EFP ENCL FRAME PORCH
40 square feet
E
FRBAY FRAME BAY
28 square feet