Address: 620 VIRGINIA AVE   Parcel: 17041023030400

Parcel Sketches


Residential Card 1

Residential Card 1
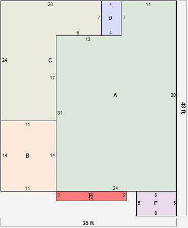
AMAIN821 square feet
B 1S FR ONE STORY FRAME AT FN ATTIC-FINISHED 154 square feet
C WDDCK WOOD DECKS 327 square feet
DUNFIN BSMT BASEMENT UNFINISHED 1S FR ONE STORY FRAME 28 square feet
EUNFIN BSMT BASEMENT UNFINISHED 1S FR ONE STORY FRAME 40 square feet
F FRBAY FRAME BAY 28 square feet