Elected Officials
Courts
Departments
Initiatives
Open Government
About
Login / Register
Home
/
Property & Tax Records
/
Property Records
/
Property & Tax Search
/
Parcel Profile
/
Sketches
Search for Another Parcel
Parcel Profile
Historical Card
Sketches
Photos
Tax Map
Taxes
Print View
Address: 616 DELAWARE AVE
Parcel: 17041023040600
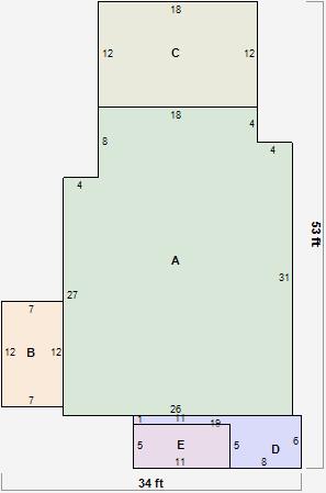
Parcel Sketches
Residential Card 1
A
MAIN
862 square feet
B
UNFIN BSMT BASEMENT UNFINISHED 1S FR ONE STORY FRAME
84 square feet
C
MA_PT CONC/MAS PATIO
216 square feet
D
1SMAS MASONRY
59 square feet
E
MA STOOP/TERR MAS STOOP
55 square feet