Elected Officials
Courts
Departments
Initiatives
Open Government
About
Login / Register
Home
/
Property & Tax Records
/
Property Records
/
Property & Tax Search
/
Parcel Profile
/
Sketches
Search for Another Parcel
Parcel Profile
Historical Card
Sketches
Photos
Tax Map
Taxes
Print View
Address: 2017 S SHORE DR
Parcel: 17041030010400
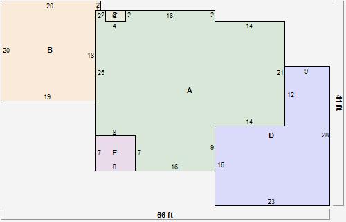
Parcel Sketches
Residential Card 1
A
MAIN
998 square feet
B
1S FR ONE STORY FRAME AT FN ATTIC-FINISHED
382 square feet
C
EFP ENCL FRAME PORCH FROVR FRAME OVERHANG
8 square feet
D
MA_PT CONC/MAS PATIO
476 square feet
E
OMP OPEN MASONRY PORCH
56 square feet