Elected Officials
Courts
Departments
Initiatives
Open Government
About
Login / Register
Home
/
Property & Tax Records
/
Property Records
/
Property & Tax Search
/
Parcel Profile
/
Sketches
Search for Another Parcel
Parcel Profile
Historical Card
Sketches
Photos
Tax Map
Taxes
Print View
Address: 626 BEVERLY DR
Parcel: 17041031040400
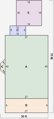
Parcel Sketches
Residential Card 1
A
MAIN
1080 square feet
B
EFP ENCL FRAME PORCH
243 square feet
C
UNFIN BSMT BASEMENT UNFINISHED MABAY MASONRY BAY
21 square feet
D
EFP ENCL FRAME PORCH
60 square feet
E
WDDCK WOOD DECKS
256 square feet