Elected Officials
Courts
Departments
Initiatives
Open Government
About
Login / Register
Home
/
Property & Tax Records
/
Property Records
/
Property & Tax Search
/
Parcel Profile
/
Sketches
Search for Another Parcel
Parcel Profile
Historical Card
Sketches
Photos
Tax Map
Taxes
Print View
Address: 613 CONNECTICUT DR
Parcel: 17041031041400
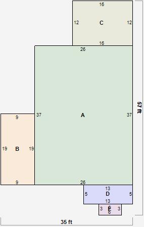
Parcel Sketches
Residential Card 1
A
MAIN
962 square feet
B
CARPT CARPORT
171 square feet
C
EFP ENCL FRAME PORCH
192 square feet
D
1S FR ONE STORY FRAME AT FN ATTIC-FINISHED
65 square feet
E
MA STOOP/TERR MAS STOOP
18 square feet