Elected Officials
Courts
Departments
Initiatives
Open Government
About
Login / Register
Home
/
Property & Tax Records
/
Property Records
/
Property & Tax Search
/
Parcel Profile
/
Sketches
Search for Another Parcel
Parcel Profile
Historical Card
Sketches
Photos
Tax Map
Taxes
Print View
Address: 402 BEVERLY DR
Parcel: 17041032021900
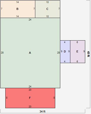
Parcel Sketches
Residential Card 1
A
MAIN
672 square feet
B
UNFIN BSMT BASEMENT UNFINISHED 1S FR ONE STORY FRAME
98 square feet
C
UNFIN BSMT BASEMENT UNFINISHED OFP OPEN FRAME PORCH
70 square feet
D
1S FR ONE STORY FRAME
36 square feet
E
MA STOOP/TERR MAS STOOP
54 square feet
F
1S FR ONE STORY FRAME
160 square feet